Scout Real Estate Co. is proud to announce that Buc-ee’s is coming to Louisiana

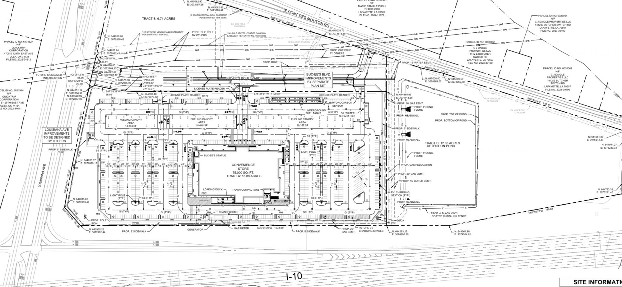
Lafayette, LA — Scout Real Estate Co. is proud to announce that Buc-ee’s, the iconic Texas-based travel center chain known for its pristine restrooms, vast selection of snacks, and unforgettable customer experience, will soon call Lafayette, Louisiana home. The new location is set to be built at the Louisiana Avenue exit, a high-visibility area perfectly positioned to welcome both local residents and travelers alike.

The transaction was expertly brokered by Tim Skinner of Scout Real Estate, who served as the listing agent for property owner Charlie Castille. This landmark deal was made possible with invaluable support from Mandi Mitchell and the Lafayette Economic Development Authority (LEDA), as well as the steadfast guidance of Steve Lanza and his team at the Onebane Law Firm. Their combined efforts ensured that every detail was handled with precision and care, bringing this major opportunity to the Lafayette community.
It has been a long-held vision of Charlie Castille to bring Buc-ee’s to Lafayette and to offer its one-of-a-kind customer experience to Cajun Country. This development marks the realization of that vision and sets the stage for significant local economic impact.
Buc-ee’s is famous for its massive stores, freshly prepared brisket sandwiches, and exclusive Buc-ee’s-branded merchandise. More than just a travel stop, each Buc-ee’s location is a destination in its own right, drawing visitors from miles around. The Lafayette location will follow this tradition, providing a fresh wave of job opportunities and economic growth for the region.
The Louisiana Avenue site will be transformed into a state-of-the-art travel center, featuring modern amenities designed to serve the needs of both road travelers and the local community. The development is expected to create new jobs, support local commerce, and further cement Lafayette’s position as a thriving hub for growth and opportunity.

Steve Lanza and Craig Ryan with the Onebane Law Firm in Lafayette represented the Castille family in this matter, ensuring a smooth and successful transaction.
Construction timelines and the official opening date will be shared in the coming months. The community’s excitement is already building, as residents eagerly anticipate the arrival of one of the country’s most celebrated travel center brands.

About Scout Real Estate Co.: Scout Real Estate Co. is a premier commercial real estate brokerage firm headquartered in Lafayette, Louisiana. The firm specializes in commercial sales, leasing, property management, and construction, with a commitment to excellence and community-driven impact. For more information, visit www.scoutrec.com.
For more about Buc-ee’s, check out their website at buc-ees.com
For developing updates, check out out our friends at: developinglafayette.com